









| Сопла абразивоструйные на заказ. | ||
|
|
|
|
|
|
|
|
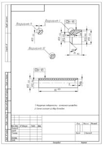
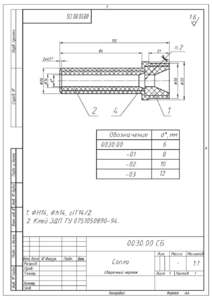
Если Вы не нашли на нашем сайте абразивоструйные сопла которые подходят именно Вам, под Ваш пескоструйный аппарат, будь он изготовлен своими руками или приобретен за границей, не отчаевайтесь, БластАнтикор поможет ВАМ ! Вы пресылаете нам чертеж или фото Вашего уже бывшего в употребление пескоструйного сопла, мы рассматриваем заявку, озвучиваем ВАМ стоимость, Вы вносите предоплату 50% и всё. Вам остается только дождаться и Ваш пескоструйный аппарат вновь почувствует преимущество новых неизносившихся сопел. Сопла изготавливаются различного вида, диаметров и из высококачественных материалов.Отличительной особенностью является то, что сопла изготовлены по современным технологиям и с качеством превосходящим по некоторым позициям аналогичные образцы западных конкурентов. Внимание : Минимальный заказ от 10шт. срок иполнения заказа оговаривается индивидуально, взависимости от сложности и колличества заказанных сопел. |
|
|
|
|
|
||
Чертежи и заявки можете отправлять на этот электронный адрес : sale@blastanticor.ru
| Прочие | ||
| Ссылка на страницу "Как выбрать" | /kak-vybrat-soplo/ | |
| ID поста блога для комментариев | 207 | |
|
© 2011—2025 Blastanticor.ru Дальневосточный проспект, 79к1, Санкт-Петербург, 193079 Посмотреть на карте |
(812) 303-06-59 Email: sale@blastanticor.ru
|
Сайт использует необходимые для работы cookies. Продолжая использование, вы соглашаетесь с их применением. Подробнее в политике конфиденциальности